Ozubený hřeben ocelový 30x8mm, pozinkovaný, M4 6 (LZ-2-6)
Hřebenová ocel, pozinkovaná, 30x8mm,
1m segment, M4




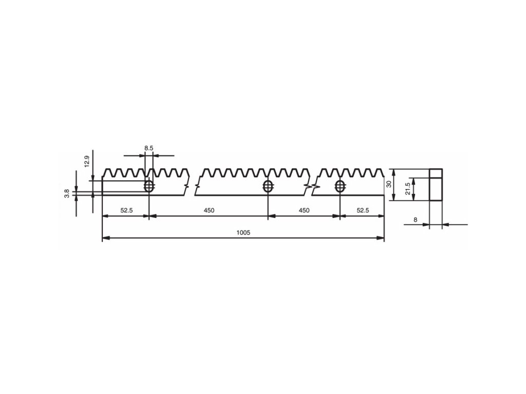
Pozinkovanýocelový zubatý hřeben. Délka jednoho segmentu je 1 m, tloušťka 8 mm, výška zubu 30 mm. Ostatní rozměry viz výkres.
Hřeben s pastorkem se dodává včetně 3 ks svařovacích matic pro upevnění a 3 ks upevňovacích šroubů. Matice jsou primárně určeny k přivaření k bráně. Segmenty jsou vzájemně kompatibilní a lze je snadno propojit. Na 1 m hřebene připadají 3 nástavce.
Převodový modul je 4 a je kompatibilní s pohony Nice z naší nabídky, ale také s většinou pohonů jiných značek.
Zubatý hřeben je vyroben z vysoce kvalitní oceli a je povrchově chráněn zinkováním. Tento hřeben je určen především pro těžké brány s velkým počtem cyklů za den.
Kolik metrů ozubení použiji pro bránu?
Pro vaši bránu budete pravděpodobně potřebovat ozubené kolo o délce světlé šířky průjezdu zvětšené o 1 m (nebo kus za ozubeným kolem staticky umístěného pohonu v zavřeném stavu brány). Příklad : Mám průjezd brány široký 3,00 m a osa hnacího kola je 30 cm od začátku průjezdu.
Budete potřebovat délku ozubeného hřebene přibližně 3,50 m (Z naší zkušenosti si raději objednejte 4,00 m, ať Vám nechybí).
|
Obecné informace:
Princip činnosti je založen na tzv. ozubeném převodu, kdy ozubený hřeben, pevně přišroubovaný k bráně, je pohybován ozubeným kolem staticky pevného elektromechanického pohonu brány. |
Ozubený převod pohonu brány |
Doplňkové parametry
| Kategorie: | Ocel ZN |
|---|---|
| Hmotnost: | 10 kg |
| Délka [m]: | 6 |
| Položka byla vyprodána… | |
Diskuze
Buďte první, kdo napíše příspěvek k této položce.
